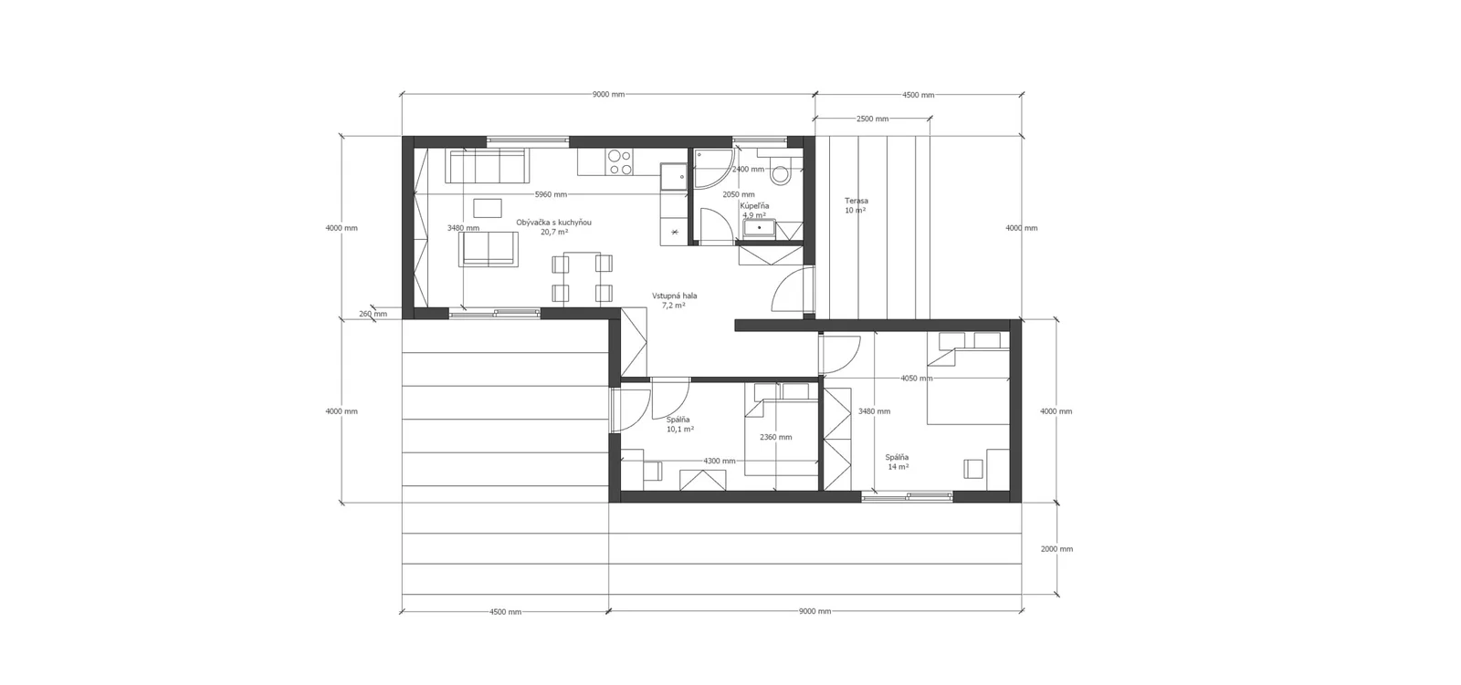
Modulház – Z
A Z alaprajzú modulházak számos dizájnlehetőséget kínálnak, amelyek lehetővé teszik egyedi stílus és modern megjelenés kialakítását.
Alaprajzuk a Z betű formáját követi, ami azt jelenti, hogy a ház egyes részei természetes módon „egymásba tolódnak”, és így komplex és érdekes építészetet hoznak létre. Ez a megoldás teret biztosít a dinamikus térfelosztás számára, amely ötvözi a funkcionalitást a vonzó megjelenéssel.
Szállítás tárgya
A szállítás tárgya és annak részei a következők:
Egyedi szállítás a megrendelő igényei szerint
A modulok összeszerelése teljesen működőképes moduláris egységgé
Szakmai felülvizsgálati és villamos berendezés műszaki vizsgálati jegyzőkönyve
Felhasznált anyagok tanúsítványai
Megfelelőségi nyilatkozat
Termékminőségi és jótállási igazolás / A jótállási idő 24 hónap az épület átadásának napjától
A szállítás tárgyát nem képezi:
Külső közműcsatlakozás / szennyvíz, víz, villany / – Villamos projekt szállítása
Tűzvédelmi projekt szállítása
Az épület földelése
Az alapok előkészítése az épület elhelyezéséhez
Szállítás a rendeltetési helyre
Járműrakodás
Helyszíni kirakodás és a darus munkák az épület szerelésével kapcsolatban
Műszaki paraméterek
A modulok szerkezete
- 3 mm falvastagságú zárt acélprofilokból készült hegesztett vázszerkezet.
- A hegesztés és annak ellenőrzése az STN EN ISO 3834-2 szabvány szerint, ISO 9001:2000 tanúsítással történik.
- Minden fém alkatrész felületkezelése korrózióálló cink-foszfát alapozó festékkel, két rétegben történik.
- A látható fémrészek végső felületkezeléséhez alkid festékanyag kerül felhasználásra.
Padlószerkezet
- Guttafol ALU párazáró fólia
- T8 formázott horganyzott lemez
- EPX 70 (80 mm) grafit szigetelés
- OSB3 faforgácslap 15 mm
- Fermacell 15 mm
- WARMUP padlófűtés érintőképernyős termosztáttal
- Szegőléc + tartozékok
- Kiegyenlítő anyag
- Kerámia csempe vagy laminált padló 20 €/m² értékben
Mennyezetszerkezet
- UD mennyezeti profil
- CD mennyezeti profil
- Guttafol ALU párazáró fólia
- Knauf Diamant X gipszkartonlap 12,5 mm
- Glettelés és alap fehér festés
- OSB3 faforgácslap 15 mm
Tetőszerkezet és vízszigetelés
- C24 faanyag 120×45
- OSB3 faforgácslap 15 mm
- AL attika bádogozás antracit színben 0,8 mm
- Fatrafol 810V 1,5 mm
- Geotextília 300 g/m²
- Isover – Unirol profi szigetelés 120 mm
- KJG lefolyók, ereszcsatornák
Külső falszerkezet
- Slovizol szigetelés 100 mm + vakolat 2 mm
- OSB / Fermacell 15 mm
- Jutadach 135 páraáteresztő fólia
- Szigetelés – ásványgyapot Isover – Unirol profi – vastagság 120 mm
- C24 faanyag 120×45
- Guttafol ALU párazáró fólia
- Knauf Diamant X gipszkartonlap 12,5 mm
- Glettelés és alap fehér festés
Válaszfal szerkezet /nem teherhordó falak/
- Knauf Diamant X gipszkartonlap 12,5 mm
- Glettelés és alap fehér festés
- C24 faanyag 90×45
- Szigetelés – ásványgyapot Isover – Unirol profi – vastagság 100 mm
Vízszerelési munkák
- Szennyvízcsövek szerelése
- Vízvezetékcsövek szerelése
- EOV 180L /választás szerint
- Előkészítés a konyhai vízszereléshez
- Mosdó csapteleppel /választás szerint
- Geberit függesztett WC
Nyílászárók
- bejárati ajtó 1300 mm x 2200 mm 1 db
- erkélyajtó bukó-nyíló 2500 mm x 2300 mm 4 db
- bukó ablak 1200 mm x 600 mm 1 db
- erkélyajtó bukó-nyíló 900 mm x 2300 mm 1 db
Beltéri ajtók tokszerkezettel
- Beltéri ajtó 90 cm 4 db
- Beltéri ajtó 70 cm 1 db

Villanyszerelési munkák
Az elektromos hálózat CYKY vezetékekkel kerül kialakításra. Minden vezeték a falakba van beépítve. Az elosztószekrény áram-védőkapcsolóval van felszerelve. A dugaljvezetékek és készülékek 16 A-es kismegszakítóval, a világítási körök 10 A-es kismegszakítóval vannak biztosítva. A gyengeáramú vezetékek számára védőcsövekben előkészítés készül, és a szállítókkal történt egyeztetés után ezekbe kerülnek be a kábelvezetékek.
Ár
Az épületeket az ügyfél igényei és követelményei szerint készítjük, ezért minden épület ára eltérő.
A pontos ár az épület méretétől és felszereltségétől függ.





