Modulház – T

Az U alakú modulházak egyedi elrendezést kínálnak, ahol a központi részt egy udvar vagy terasz alkotja, amelyet az épület három oldala vesz körül.

Ez az elrendezés privát teret hoz létre, amely alkalmas pihenésre, kertészkedésre vagy grillezésre, és természetes módon védett a külső zajoktól.

Az U alakú házak ideálisak nagyobb családok számára, mivel lehetővé teszik az egyes lakóterek kényelmes elkülönítését – például nappali, hálószobák vagy vendéghelyiségek.

Információk
Modulx - P

Belmagasság
255 cm

Méretek
700×400×310 cm 3 db

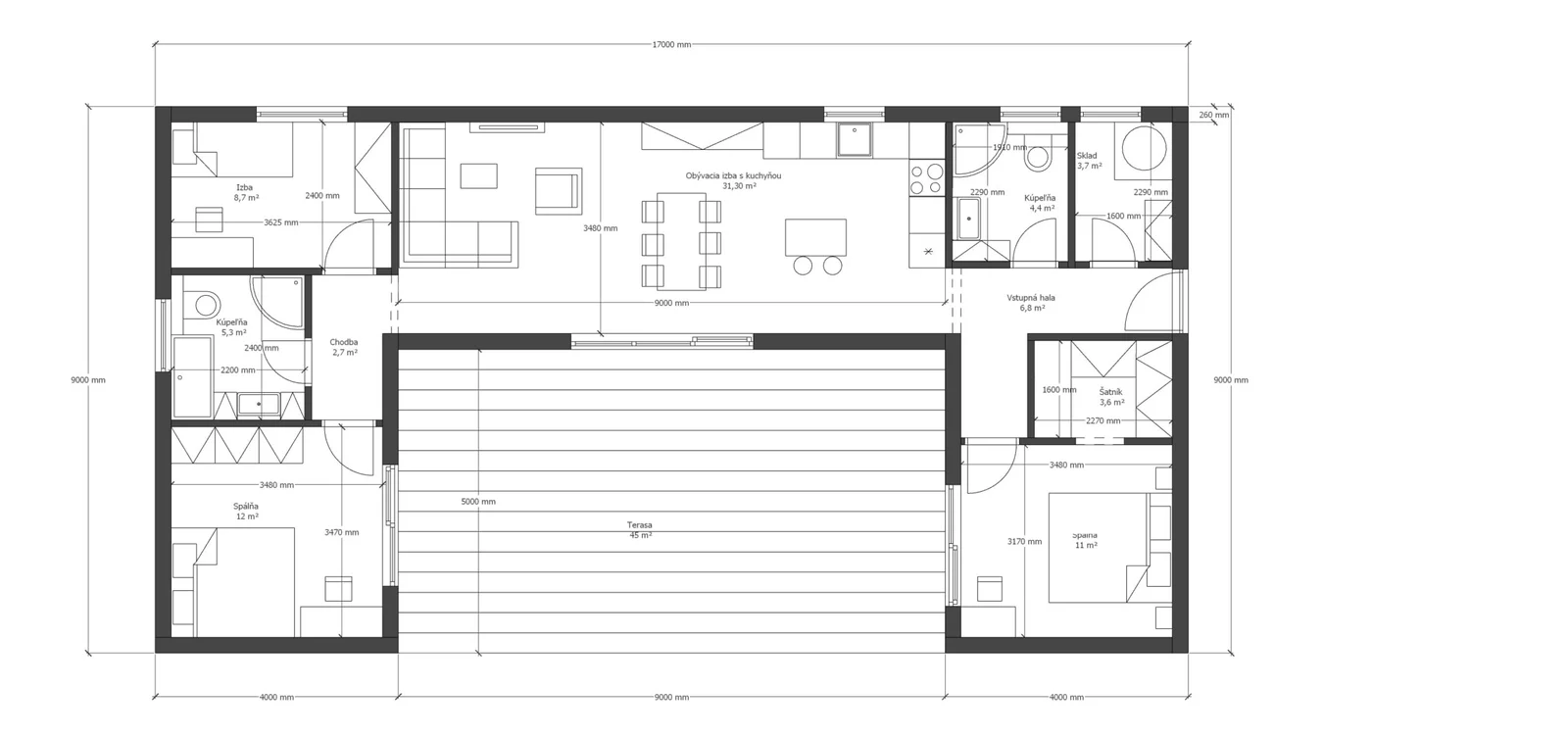
Alaprajz

Szállítás tárgya

A szállítás tárgya és annak részei a következők:

  • Egyedi szállítás a megrendelő igényei szerint

  • A modulok összeszerelése teljesen működőképes moduláris egységgé

  • Szakmai felülvizsgálati és villamos berendezés műszaki vizsgálati jegyzőkönyve

  • Felhasznált anyagok tanúsítványai

  • Megfelelőségi nyilatkozat

  • Termékminőségi és jótállási igazolás / A jótállási idő 24 hónap az épület átadásának napjától

A szállítás tárgyát nem képezi:

  • Külső közműcsatlakozás / szennyvíz, víz, villany / – Villamos projekt szállítása

  • Tűzvédelmi projekt szállítása

  • Az épület földelése

  • Az alapok előkészítése az épület elhelyezéséhez

  • Szállítás a rendeltetési helyre

  • Járműrakodás

  • Helyszíni kirakodás és a darus munkák az épület szerelésével kapcsolatban

Műszaki paraméterek

A modulok szerkezete

  • 3 mm falvastagságú zárt acélprofilokból készült hegesztett vázszerkezet.
  • A hegesztés és annak ellenőrzése az STN EN ISO 3834-2 szabvány szerint, ISO 9001:2000 tanúsítással történik.
  • Minden fém alkatrész felületkezelése korrózióálló cink-foszfát alapozó festékkel, két rétegben történik.
  • A látható fémrészek végső felületkezeléséhez alkid festékanyag kerül felhasználásra.

Padlószerkezet

  • Guttafol ALU párazáró fólia
  • T8 formázott horganyzott lemez
  • EPX 70 (80 mm) grafit szigetelés
  • OSB3 faforgácslap 15 mm
  • Fermacell 15 mm
  • WARMUP padlófűtés érintőképernyős termosztáttal
  • Szegőléc + tartozékok
  • Kiegyenlítő anyag
  • Kerámia csempe vagy laminált padló 20 €/m² értékben

Mennyezetszerkezet

  • UD mennyezeti profil
  • CD mennyezeti profil
  • Guttafol ALU párazáró fólia
  • Knauf Diamant X gipszkartonlap 12,5 mm
  • Glettelés és alap fehér festés
  • OSB3 faforgácslap 15 mm

Tetőszerkezet és vízszigetelés

  • C24 faanyag 120×45
  • OSB3 faforgácslap 15 mm
  • AL attika bádogozás antracit színben 0,8 mm
  • Fatrafol 810V 1,5 mm
  • Geotextília 300 g/m²
  • Isover – Unirol profi szigetelés 120 mm
  • KJG lefolyók, ereszcsatornák

Külső falszerkezet

  • Slovizol szigetelés 100 mm + vakolat 2 mm
  • OSB / Fermacell 15 mm
  • Jutadach 135 páraáteresztő fólia
  • Szigetelés – ásványgyapot Isover – Unirol profi – vastagság 120 mm
  • C24 faanyag 120×45
  • Guttafol ALU párazáró fólia
  • Knauf Diamant X gipszkartonlap 12,5 mm
  • Glettelés és alap fehér festés

Válaszfal szerkezet /nem teherhordó falak/

  • Knauf Diamant X gipszkartonlap 12,5 mm
  • Glettelés és alap fehér festés
  • C24 faanyag 90×45
  • Szigetelés – ásványgyapot Isover – Unirol profi – vastagság 100 mm

Vízszerelési munkák

  • Szennyvízcsövek szerelése
  • Vízvezetékcsövek szerelése
  • EOV 180L /választás szerint
  • Előkészítés a konyhai vízszereléshez
  • Mosdó csapteleppel /választás szerint
  • Geberit függesztett WC

Nyílászárók

  • bejárati ajtó 1300 mm x 2200 mm 1 db
  • erkélyajtó bukó-nyíló 2500 mm x 2300 mm 4 db
  • bukó ablak 1200 mm x 600 mm 1 db
  • erkélyajtó bukó-nyíló 900 mm x 2300 mm 1 db

Beltéri ajtók tokszerkezettel

  • Beltéri ajtó 90 cm 4 db
  • Beltéri ajtó 70 cm 1 db

Villanyszerelési munkák

Az elektromos hálózat CYKY vezetékekkel kerül kialakításra. Minden vezeték a falakba van beépítve. Az elosztószekrény áram-védőkapcsolóval van felszerelve. A dugaljvezetékek és készülékek 16 A-es kismegszakítóval, a világítási körök 10 A-es kismegszakítóval vannak biztosítva. A gyengeáramú vezetékek számára védőcsövekben előkészítés készül, és a szállítókkal történt egyeztetés után ezekbe kerülnek be a kábelvezetékek.

Ár

Az épületeket az ügyfél igényei és követelményei szerint készítjük, ezért minden épület ára eltérő.
A pontos ár az épület méretétől és felszereltségétől függ.

Árajánlatot kérek

Érdeklődés esetén felveheti velünk a kapcsolatot.